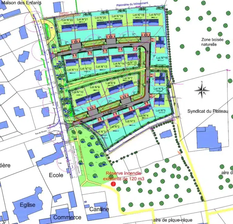
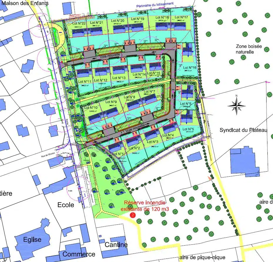
Creation lotissement quartier zone dactivite Landivisiau - Finistère Côtes-d’Armor

La Martyre